THE #1 LEADING MECHANICAL HVAC DESIGN FIRM IN CHARLOTTE, NC
Our Services
We offer a wide range of mechanical design services tailored to meet your individual needs. Our approach is focused on understanding each project what is requires, providing effective and practical solutions.

MECHANICAL DESIGN SERVICES
At Elite Mechanical Cad Services we specialize in producing elite commercial mechanical plans. We put the "M" in MEP.
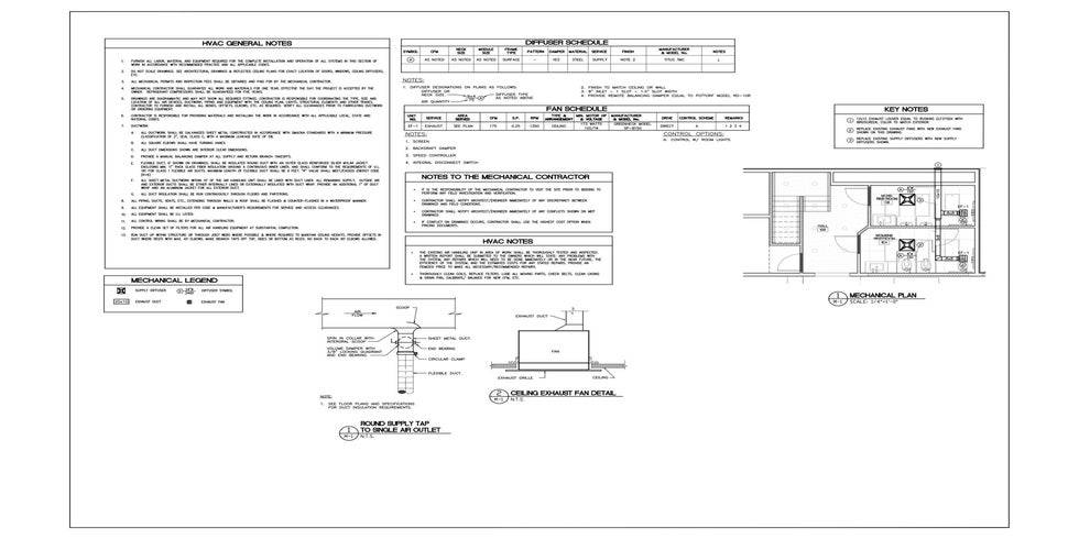
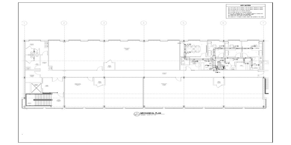
We develop full sets of high quality mechanical plans, details & schedules for construction. With over 25 years experience in designing Schools, Hotels, Churches, Large Offices, Restaurants, Salons, Auto Shops, Retail Stores, Large Warehouses & more. We can handle any job with elite precision!

DUCTWORK SIZING & EQUIPMENT SELECTION SERVICES.
We offer consultation on mechanical ductwork sizing & air handler equipment selections for any commercial project. If you need assistance with selecting the right equipment or sizing ductwork no worries! E.M.C.S can help you meet all your design project needs.

REDLINES & MARKUPS
We offer redline & markup services for clients needing to add changes to any new or existing project as needed. Just send over your Cad or REVIT files & we'll do the rest!

EDUCATION
At Elite Mechanical Cad Services we also offer mechanical cad drafting & design courses aimed to teach & mold young designers. All courses are AutoCad MEP based aimed to teach the principles of drafting & fundamentals of hvac design. We offer group training & or one on one sessions. If you have questions or concerns please reach out to us to book a session. We look forward to consulting with you.